

















GODDEN SUDIK 2257-39
By continuing to checkout you acknowledge that you have read, understood, and agreed to our terms and conditions
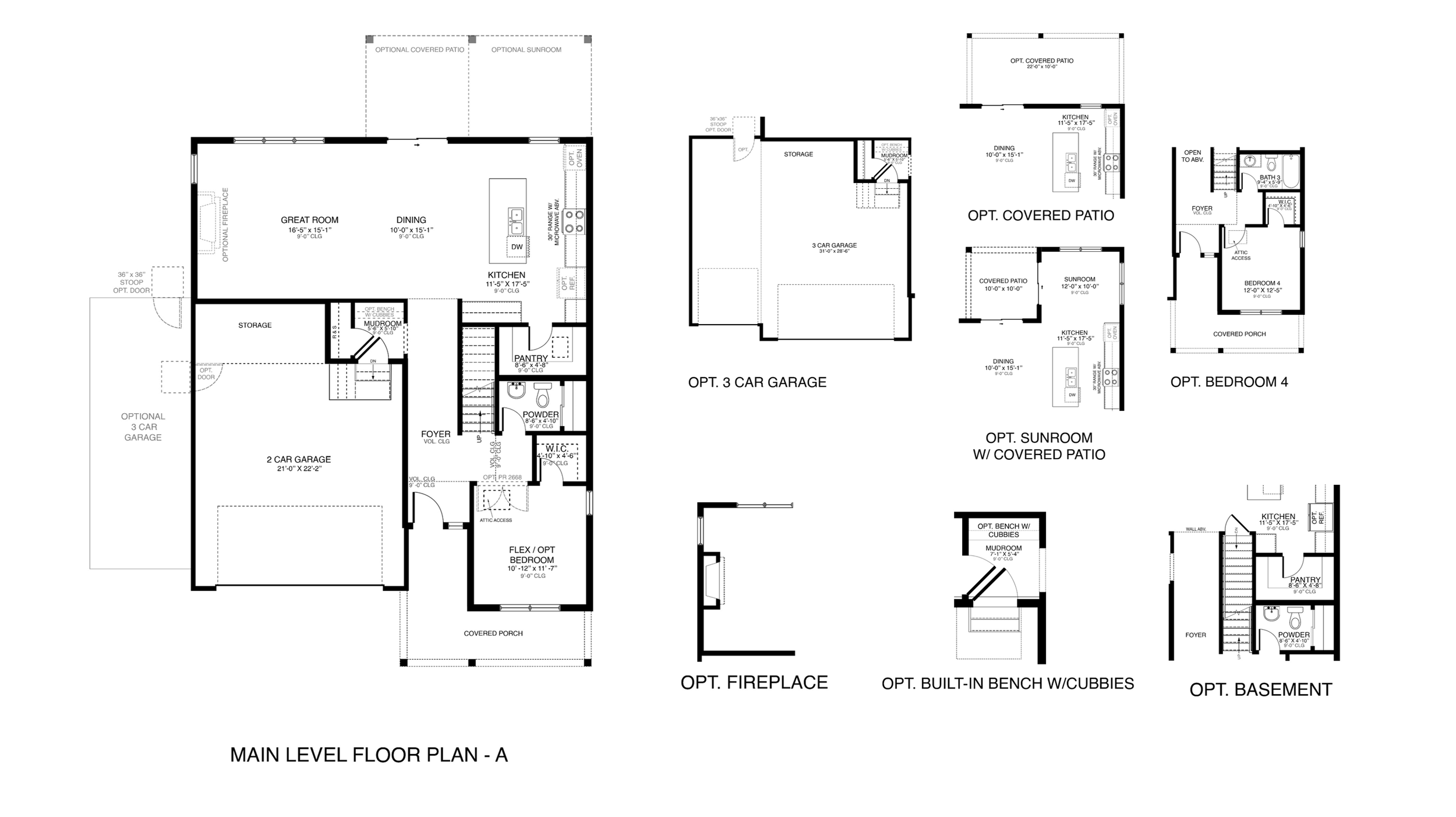
3-5 BEDROOMS · 2.5-4 BATHROOMS · 2257 SQ. FT.
At 39’ wide, this home delivers a functional 2-story design, limitless configuration, and maximum livability. Offering a finished basement, slab on grade or crawl space foundation in addition to five unique elevations.
The main floor features an open Great Room, Dining and Kitchen area at the back of the home with the ability to grow the space with a Sunroom or Covered Patio option. The front of the home features a flex room that can be modified to serve as an additional bedroom, office area or dedicated kids play space.
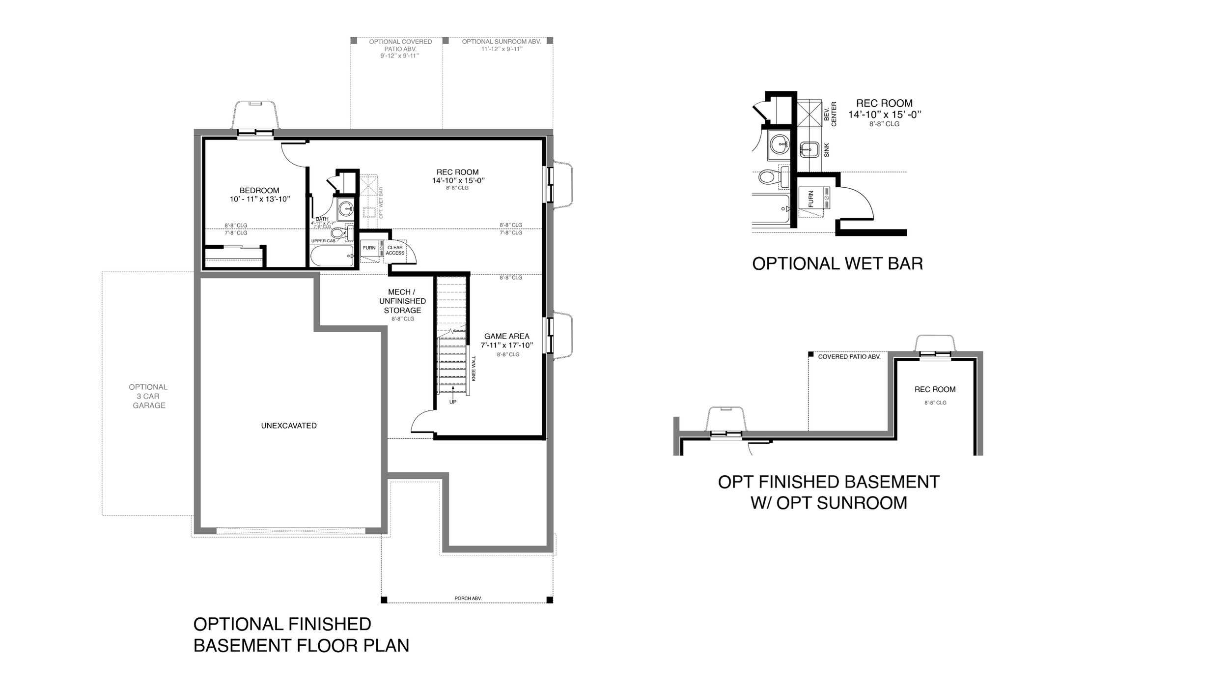
The second floor features a functional layout with a base configuration of the Primary Bedroom, Bedroom 2 and Bedroom 3. Multiple configuration options also exist, including an optional Junior Bedroom creating a secondary suite space with walk-in closet and spacious Junior Bathroom.
The finished basement extends the utility of this plan, allowing for a potential configuration of up to five bedrooms.
Unique features of this plan include:
• Option for a flex/Bedroom 4 on the first floor
• Option for Junior Bedroom (additional primary bedroom) as part of the second floor
• Extended first floor space with optional Sunroom with Covered Patio
Foundation Types: Basement (Finished and Unfinished), Crawl Space, Slab on Grade
AWARD WINNING DESIGNS FOR ALL
HOME PLANS BY GODDEN SUDIK ARCHITECTURE
Home Plan Library simplifies homebuilding. Paradigm and Builders FirstSource partnered with Godden Sudik Architects to create a collection of homes tailored to common building pad sizes.
Godden Sudik's renowned designs enhance lives, and their 25 years of expertise ensure builders and homeowners find success.
This collaboration offers builders nationwide access to diverse, marketable plans.
COMPARE LICENSES
ONE-TIME SOLVE, NO MARKETING
Your standard Home Plan Library package, allowing you to enjoy the benefits of thoughtfully designed, off-the-shelf home plans with the flexibility of solving a master plan set consisting of multiple elevations, various foundation types and numerous options.
Home Plan Classic licenses allow you one solved set of plans including:
PDF Home Plan Documents:
• Exterior elevations
• Dimensioned floor plan
• Foundation plan
• Roof plan
• Cross section
• Plan details and applicable interior elevations
Access to the master set of the plan for permitting: No
Cost to use the licensed plan without requiring a solved PDF builder plan: Not available
Cost for an additional solved builder plan: $1,500
Marketing Materials: Not included with Home Plan Classic
Home Configure: Not included with Home Plan Classic
Annual Renewal: Annual renewals are not available with the Home Plan Classic package
ONE-TIME SOLVE WITH MARKETING AND HOME CONFGURE
For the builder that knows the house they want to build and has a need to build that model multiple times with different configurations.
Home Plan Plus licenses allow you one solved set of plans including:
PDF Home Plan Documents:
• Exterior elevations
• Dimensioned floor plan
• Foundation plan
• Roof plan
• Cross section
• Plan details and applicable interior elevations
Access to the master set of the plan for permitting: No
Cost to use the licensed plan without requiring a solved PDF builder plan: No additional cost
Cost for an additional solved builder plan: $1,500
Marketing Materials: Includes at minimum a 2D floor plan showing the plan options and a 3D elevation image for each elevation within the plan set
Home Configure: Includes at minimum an interactive exterior with five positions allowing the user to view and configure the home from all angles
Annual Renewal:
$500 for continued access to the master plan set delivered at the time of first license
$1500 for continued access to the marketing materials and Home Configure
FULL MASTER PLAN SET ACCESS WITH MARKETING AND HOME CONFIGURE
The most flexible Home Plan Library package delivers the greatest value to a builder who needs access to versatile plan sets with minimal effort or cost.
Home Plan Unlimited licenses allow you access to the plan master set in addition to one solved set of plans including:
PDF Home Plan Documents:
• Exterior elevations
• Dimensioned floor plan
• Foundation plan
• Roof plan
• Cross section
• Plan details and applicable interior elevations
Access to the master set of the plan for permitting: Yes
Cost to use the licensed plan without requiring a solved PDF builder plan: No additional cost
Cost for an additional solved builder plan: $525
Marketing Materials: Includes at minimum a 2D floor plan with options and a 3D elevation image for each elevation within the plan set
Home Configure: Includes at minimum an interactive exterior with five positions allowing user to view and configure the home from all angles
Annual Renewal:
$500 for continued access to the most current master plan set (includes the version delivered at time of license and any additional updates made to the master plan set such as new options, elevations, or other plan improvements
$1500 for continued access to the marketing materials and Home Configure

BULK LICENSE PACKAGES
LOOKING TO LICENSE MULTIPLE PLANS?
If you have a need to license multiple plans simultaneously, please reach out to us and we will be happy to follow up with you to provide custom pricing on a package license.
LICENSE ADD-ONS
Upon licensing a plan from Home Plan Library, you may also order additional add-ons throughout the duration of your license.
DRAFTING AND DESIGN
Needing to make a modification to one of our Home Plans? From minor alterations to extensive revisions, utilize the Paradigm Drafting team to make a Home Plan Library plan customized to you or your business or homebuyers’ needs.
Pricing varies based on plan modification complexity.
Available where local and state regulation permits. Utilizing Paradigm’s team of licensed architects, receive your Home Plan Library plan set stamped by a licensed architect.
Pricing varies. For more information on stamped architectural plan sets, please CONTACT US.
BIM COORDINATION
Increase the level of detail for your build by utilizing BIM (Building Information Modeling) services. Using the 3D model and additional details that you provide (mechanical, electrical, plumbing, etc.), experience your home in full 3D while identifying specific collision points, examining the model for cost savings, and other strategies for shortening the build time and cost.
Available with a separate statement of work, BIM Coordination is a service provided by Paradigm. Cost varies based on BIM complexity and customer’s requests.
MARKETING
In addition to marketing assets provided as part of Home Plan Plus and Home Plan Unlimited, request customized renderings including video walkthrough tours, virtual tours, 3D images and more complete with the specific design directions that you provide.
Pricing varies based on Render services requested.
As a standalone service for Home Plan Classic, you can order an exterior or interior/exterior Home Configure experience allowing you or your homebuyer customer the ability to visualize design selections of the home in real time.














